Apartments 2

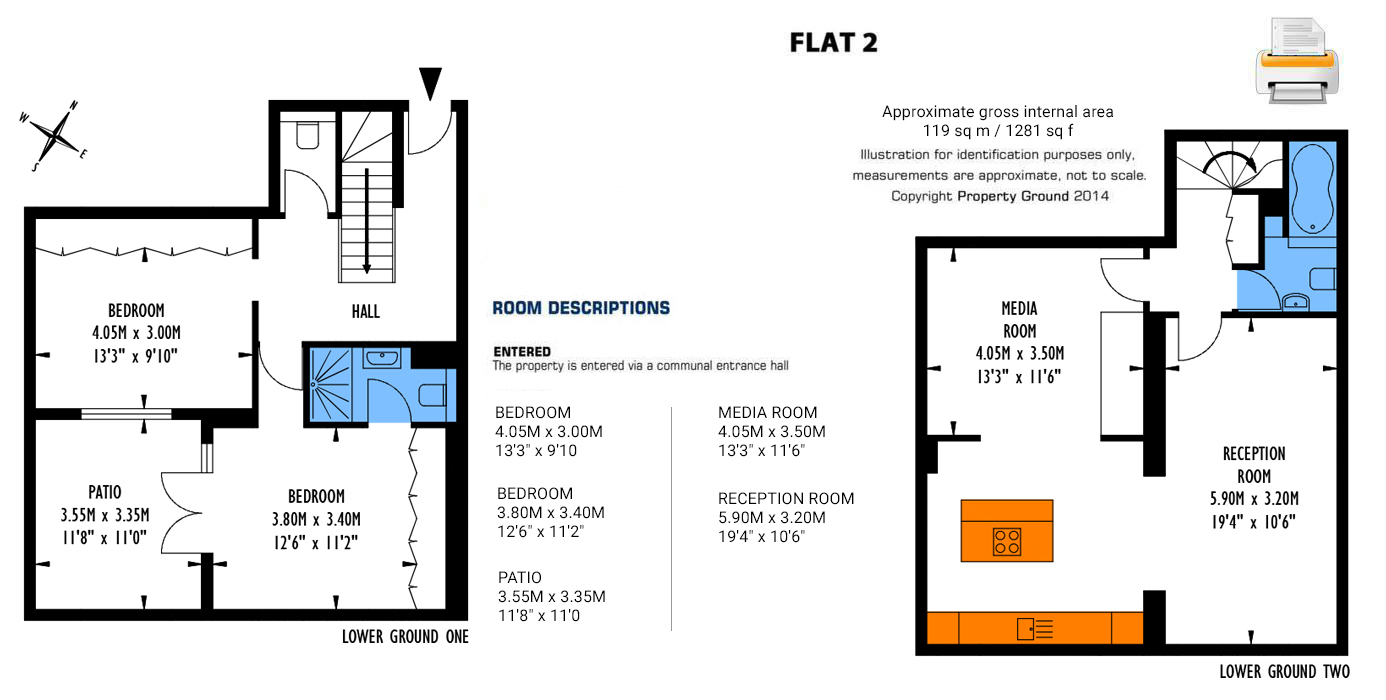
To the rear of the building lies this duplex apartment which is situated on the two lower ground floors. The property includes two king sized bedrooms, two bathrooms (one en suite), cloakroom, a modern open-plan kitchen/living area and an additional reception area. In addition this unit offers a private courtyard that has a large frosted glass panel integrated into the floor, allowing a vast amount of natural light to enter the floor below. The skylight and high ceiling on the lower floor create a vibrant and lively atmosphere. Occupants are spoilt with an Audio Visual Integrated System using Sonos, Samsung 3D TVs and Sony Blue Ray Players. In terms of comfort and healthy living the apartment offers solid tile flooring with under floor heating accompanied by comfort cooling and mood lighting.

Total 131.3m² (1413ft²)

Apartments 2

Apartments 2